Ділянка за містом поряд з річкою!

Ділянка за містом поряд з річкою! Ділянка за містом поряд з річкою! Ділянка за містом поряд з річкою!
3000 $
Код об'єкта: 35878
Район:
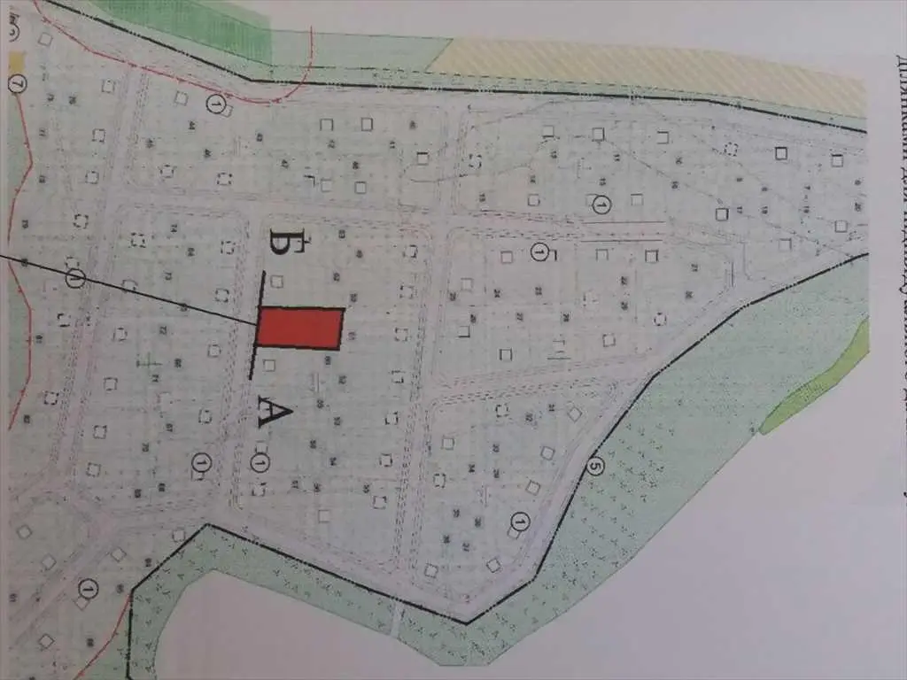
Нижні Млини
Площа ділянки:
8 сот.

Опис

 Багато людей бажають будувати дачу біля річки в екологічно чистому місці!

У продажу ділянка для дачного будівництва Нижні Млини за базою "Сенегал"


* Повністю рівна - 8 соток

* Поряд з ділянкою річка, хороші піщані пляжі!


Бажаєте проводити свої вихідні в тиші на природі поряд з містом, купуйте ділянку уже сьогодні!

Дмитро
Дім 24
Показати телефон
(066) 102-50-02