Однокімнатна квартира на Боженка!

Однокімнатна квартира на Боженка! Однокімнатна квартира на Боженка! Однокімнатна квартира на Боженка! Однокімнатна квартира на Боженка! Однокімнатна квартира на Боженка!
27500 $
Код об'єкта: 41797
Район:
Боженка
Кімнат:
1
Загальна площа:
45 кв.м
Житлова площа:
19 кв.м
Площа кухні:
8.9 кв.м
Поверх:
1
Поверховість:
9

Опис

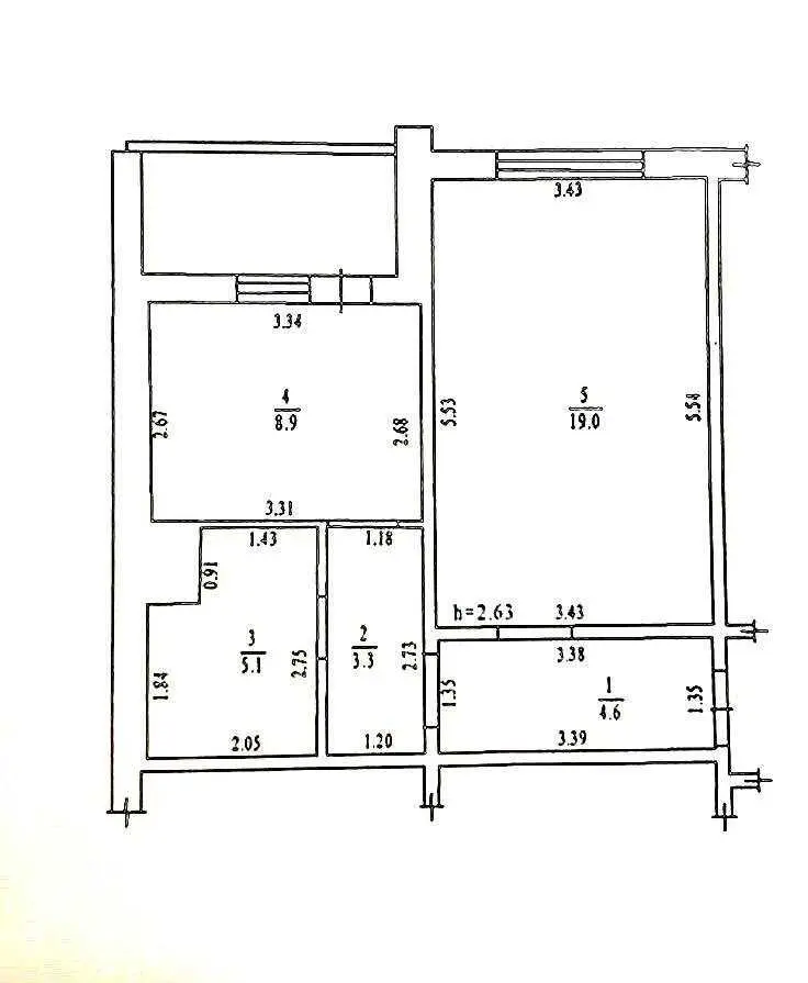
В продажу однокімнатна квартира на Боженка!


Загальна площа - 45 м2, житлова- 19 м2, кухня- 8.9  м2

Перший поверх дев`ятиповерхового будинку

Стан після будівельників

Опалення індивідуальне газове

Квартира покращеного планування

Поруч знаходиться вся необхідна інфраструктура!


За детальною інформацією телефонуйте!



Марина Володимирівна
Приват Житло
Показати телефон
(050) 053-00-45